9000 Gent
Gent, Distelstraat 60-70
Wonen op een van de meest gegeerde locaties van Gent: dit gebouw in de Distelstraat zal volledig gerenoveerd worden tot 6 appartementen. Hedendaags wooncomfort en een kwalitatieve afwerking staan centraal. De hoekligging en grote raampartijen zorgen voor een uitzonderlijke lichtinval en een open woongevoel.
De locatie is een absolute troef. Station Gent-Sint-Pieters ligt vlakbij en biedt een vlotte verbinding met het stadscentrum en daarbuiten. Het Citadelpark ligt op korte afstand en is de ideale plek voor rust en ontspanning, midden in de stad. De Distelstraat situeert zich in een residentiële en bijzonder gewilde wijk, gekenmerkt door brede lanen, kwalitatieve architectuur en een hoog wooncomfort.
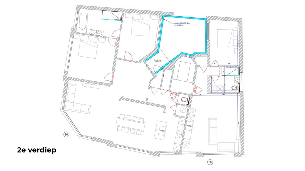
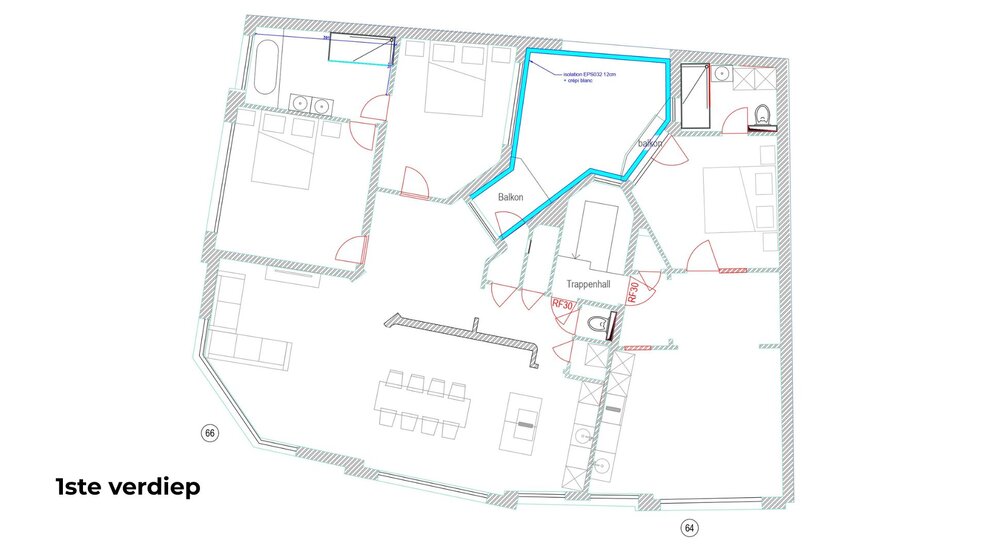
Programma
| Verdieping | Typologie | Oppervlakte |
| 0 (Gelijkvloers) | Appartement 1 slpk | 65m² |
| Appartement 2 slpk + koer | 130m² + 15m² | |
| 1ste verdiep | Appartement 1 slpk + terras | 65m² + 3m² |
| Appartement 2 slpk + terras | 130m² + 6m² | |
| 2e verdiep | Appartement 1 slpk + terras | 65m² + 3m² |
| Appartement 2 slpk + terras | 130m² + 6m² |
